New box

 

Bronze Member
Username: Nickadam55

Post Number: 49
Registered: Feb-09
Hey guys, I am thinking about building a new box for my subwoofers. I am sick of wasting my money on store boughts... does anyone have any resources to help me out.. or advice.. i have two rockford fosgate P3D212's i would greatly appreciate it! thanks
 

Silver Member
Username: Dangeranger

Ohio United States

Post Number: 131
Registered: Mar-09
get on Rfs website to see the recommended box size but use mdf 3/4 inch, drywall screws, liquid nails.
countersink your holes, and also when on the website see what their optimal tuning is. It will be in HZ.
 

Bronze Member
Username: Nickadam55

Post Number: 50
Registered: Feb-09
okay i think i figured it out.. i just doubled the length, bc i have two subs but i found a calculator online finally, the only thing left is if i should put a barrier wall between the two, the only problem i have with it is that i want to bridge them inside the box bc im running a one channel and i am going to only install one terminal on the box
 

Silver Member
Username: Armykyle1

Ms Us

Post Number: 759
Registered: Dec-08
sell em
 

Gold Member
Username: The_image_dynamic

San Diego, California

Post Number: 5335
Registered: Dec-06
Just drill a hole in the center board and then caulk around the wire.

Upload
Upload
 

Bronze Member
Username: Nickadam55

Post Number: 51
Registered: Feb-09
Okay so will it be best to just do a solid enclosure no port no nothing or i think i might try to duplicate this box(pic) which will sound betterUpload
 

Gold Member
Username: Hittin1

TEAM REVOLUTION, La. Lake Charles...

Post Number: 3838
Registered: May-07
i would go ported, but there is no need to try and duplicate that build. there are plenty of different designs that would work..

what mono amp are you going to use? make/model

you will need an amp that puts out ~500 wrms at 2 ohm (either 2 ohm stable 500 wrms amp or 1 ohm stable ~1000 wrms amp would be most common)


you do not really need he center divider. A common chamber enclosure would do fine with a mono amp since both subs will be getting the exact amount of power from the amp.

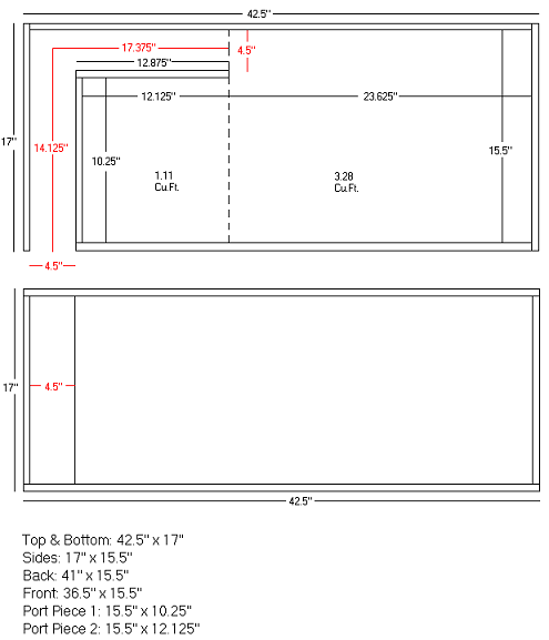
It looks like you will need ~4 ^3 ft tuned to ~35-37 Hz.
not knowing your max dimentions I found you a box design that would work if the box would fit in your vehicle. If not let me know your max dimentions and I can find you a design or make one up real quick.

Upload
 

Gold Member
Username: Hittin1

TEAM REVOLUTION, La. Lake Charles...

Post Number: 3839
Registered: May-07
btw I was going by RF powerful box size recommendations... they can go in ~1.25^3 ft each if space is an issue.
 

Bronze Member
Username: Nickadam55

Post Number: 52
Registered: Feb-09
I am going to run them at one ohm and my amp will put about 1k at 1 ohm. i dont have my car here right now :-( but i will get you the demensions, I would have a good picture if i could get my autoCAD running. but again :-( I was going to build 15.125x33.875x16.375 (H,W,D) but you are saying i will need 4 cu. ft. in my box @ about 36 hz?? i figured 1.25 cu ft @28 hz?? dammit show me where i went wrong.. but the box described has i think bout 3.68 cu. ft. think it will cut it. ( remember i have two subwoofers)
 

Bronze Member
Username: Nickadam55

Post Number: 53
Registered: Feb-09
Okay so i am going sealed thats it. I am confused on calculating the hz and volume for TWO subwoofers in the same box! HELP!!
 

Platinum Member
Username: Nyyfan13

Northern VA

Post Number: 11598
Registered: Jul-06
Can't tune a sealed box so don't worry about that. As for calculating volume, just take the dimensions of the box and subtract .75" off each dimension for the width of the MDF and then mulitply LxWxD and divide that by 1728. Then subtract each subs displacement and then your good :-)
 

Bronze Member
Username: Nickadam55

Post Number: 55
Registered: Feb-09
okay so if the volume needed for one sub is 1.25 would i double that for two subs?
 

Gold Member
Username: Hittin1

TEAM REVOLUTION, La. Lake Charles...

Post Number: 3841
Registered: May-07
how are you gonna run 2 subs that are dual 2 ohm v.c at 1 ohm? you can only wire both of them @ .5,2,and 8 ohm. if your amp puts that much power at 1 ohm, it will work great if you wire your subs at 2 ohms.
 

Silver Member
Username: Tiki89

Post Number: 347
Registered: Oct-06
you can always use www.subwoofertools.net to figure it out for you.....
 

Silver Member
Username: Ericmb

Waycross, Georgia United States

Post Number: 136
Registered: Nov-08
yeah, for 2 i would go around 3.25-3.50 cu ft. and tune the box around 36-38.. they really like the high tunings more but tuning it around 36 will throw some better lows in there.. and i def would not go sealed on these, i liked ported on mine ALOT more.

use this to design it, its soo easy.. http://reaudio.com/speaker_box/LPort_Box_Calc.html
 

Bronze Member
Username: Nickadam55

Columbia MO, Missouri

Post Number: 57
Registered: Feb-09
No i have 4ohm voice coils mark. Fosgate leans more tword sealed box but said it really dident matter. thanks
 

Bronze Member
Username: Nickadam55

Columbia MO, Missouri

Post Number: 58
Registered: Feb-09
sorry i meant P3D412s
 

Silver Member
Username: Armykyle1

Ms Us

Post Number: 792
Registered: Dec-08
I've never heard of anyone recommending a sealed box for P3s. That's flat out stupid. What made you want to buy P3s in the first place?
 

Gold Member
Username: Hittin1

TEAM REVOLUTION, La. Lake Charles...

Post Number: 3843
Registered: May-07
definately go ported... And what amp make/model are you referring too?
 

Gold Member
Username: Hittin1

TEAM REVOLUTION, La. Lake Charles...

Post Number: 3844
Registered: May-07
1000 wrms is far too much for the P3's... you will need to cut the amp back if it is a true 1000 wrms amp. I've asked you what amp a few times, and usually (not always) when no response is given to that question, the amp is something like a 1000w sony or some sh!t.
 

Bronze Member
Username: Nickadam55

Columbia MO, Missouri

Post Number: 59
Registered: Feb-09
LOL I havent had anything sony since the second grade, and it was a Christmas present(Sony walkman yeahh!!), on a more serious note it is a RF P1000-BD the cretificate says it will 1437WMAX so if you multiply that by .707 gives me RMS so it is a little over 1000.. RF.com says go more towards sealed, but the fu**ing box they sell for it is ported! i sketched up a box last night and i came up with 16X36X12.75 which gives me 3.257cu.ft. If i go ported will i hear sound difference? if it was your stuff what would u do (and dont say sell it lol) Thanks Mark.
 

Gold Member
Username: Turnmat

Www.j-designs.org

Post Number: 1112
Registered: Feb-07
I would do what every one else has been saying...go ported. You will be much happier with it ported.
 

Silver Member
Username: Ericmb

Waycross, Georgia United States

Post Number: 141
Registered: Nov-08
nick, trust me.. ive had those exact speakers and in a sealed box will get loud(not sounding good), but will get alott louder(still not sounding good) in a ported box.
 

Silver Member
Username: Ericmb

Waycross, Georgia United States

Post Number: 142
Registered: Nov-08
and saying fosgate leans more towards sealed, thats not the company voting on that.. thats the people buying their products. and for them to be voting on sealed, much less buying that product in the first place, somethings gotta be wrong in their heads.. haha but anyways trust us/me!!
 

Platinum Member
Username: Rovin

1 15 = 152.5 DBs ...Trinidad & T...

Post Number: 15485
Registered: Jul-05
what u can do is buy 2 4" aeroports from parts express instead of doing slot port - box will be smaller too ...
 

Bronze Member
Username: Nickadam55

Columbia MO, Missouri

Post Number: 61
Registered: Feb-09
Okay thanks guys ported it is then! i will update you guys with pictures next week!
« Previous Thread Next Thread »



Main Forums

Today's Posts

Forum Help

Follow Us